New homes, renovations, multi residential and solar projects are our thing!
© Copyright Land Design Build Pty Ltd
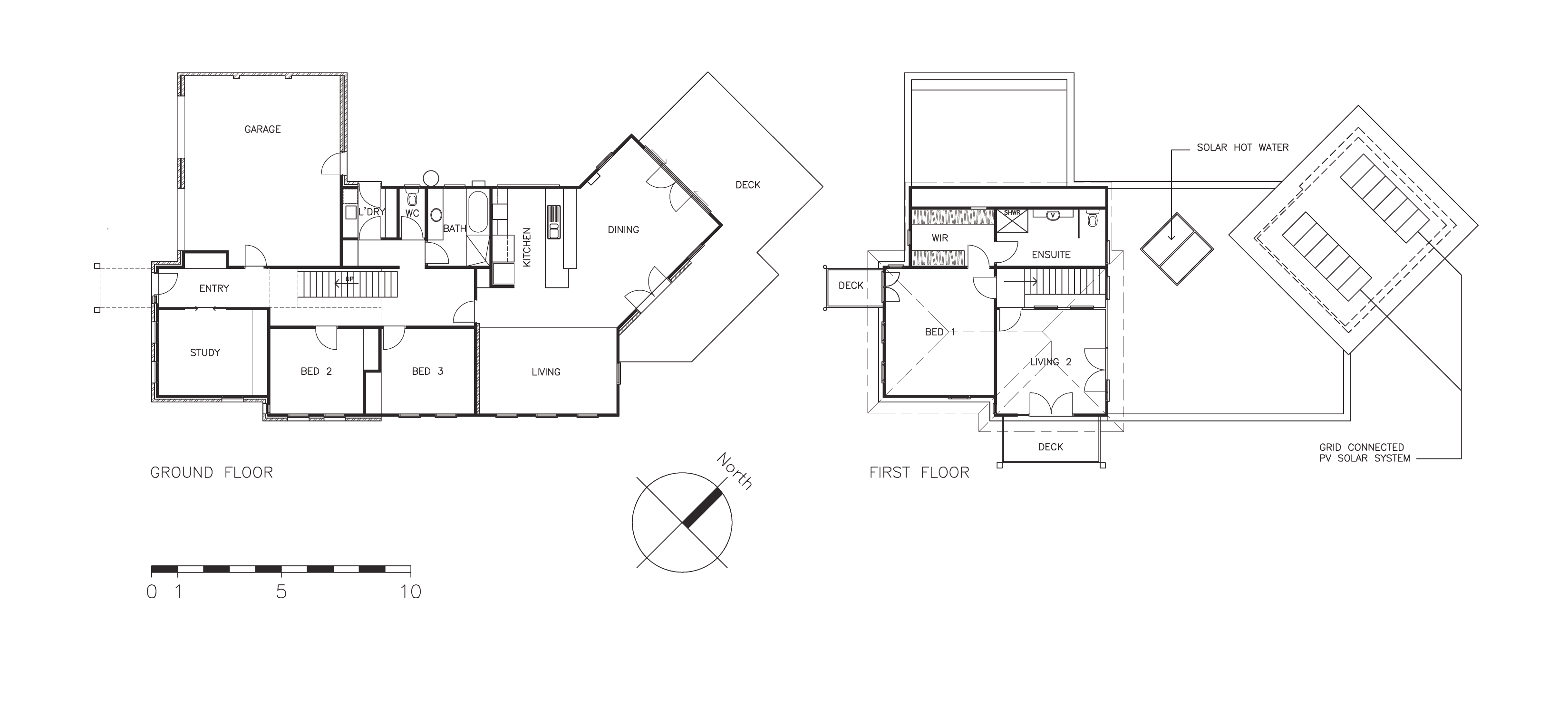
SHARLAND OASIS TORQUAY RESIDENCE
Sharland Oasis Brochure Sharland Park Brochure Sharland Oasis Booklet Sharland Oasis A3 Print Quality