New homes, renovations, multi residential
and solar projects are our thing!

Follow Us
Category
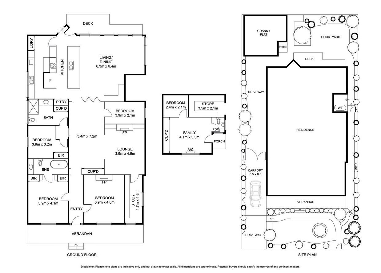
Renovations
About This Project

NEWTOWN RESIDENCE  1