New homes, renovations, multi residential
and solar projects are our thing!

Follow Us
Category
Renovations
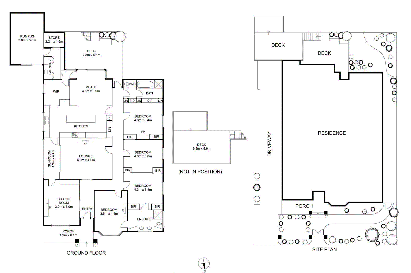
About This Project

GEELONG WEST RESIDENCE 6